Valthara Hotel Elite
DISEÑO Y MATERIALES PREMIUM
🔹 Estructura principal:
Acero estructural de alta resistencia
Sistema modular sin soldadura (ensamblaje rápido)
🔹 Muros y techo:
Panel sándwich doble lámina con núcleo PUR (20 años de garantía)
Aislamiento térmico – acústico | Estética industrial
🔹 Piso modular:
Subestructura en acero.
Revestimiento en tablas WPC (20 años de garantía.
Confort termoaislante y visual.
🔹 Ventanería:
Aluminio negro con vidrio laminado de seguridad
🔹 Cubierta solar-ready:
Preparada para integración con sistemas solares portátiles




Especificaciones complementarias


100 % Desmontable & Reubicable
Permite desmontarse totalmente sin obra civil y reubicarse cuantas veces sea necesario.
Sistema modular ampliable
Se puede unir con otras unidades para crecer: tipo , dúplex, o clúster.
Durabilidad estructural 50+ años
Construida bajo norma NSR-10 / ASTM del acero estructural.
Uso multifuncional
Vivienda, hotel, oficina, consultorio, clínica móvil, retail, glamping, etc.
UNA MEJOR VISTA A TU FUTURO

Nuestras cabañas son Inteligentes
Disfruta del control que te permiten nuestros servicios inteligentes incorporados, la comodidad de tu casa al control de tu dispositivo movil.


Domótica completa:
Panel táctil
Control de luces, cortinas, cerradura y sensores
Seguridad sin depender de internet




Modelo Autosostenible
Sistema Solar Opcional (Modelo Premium)


(2048 Wh)
2 paneles portátiles de 200W
Soporta: iluminación, domótica, TV, ventilación, cargadores, electrodomésticos
Capacidad Equipo: 3600Wh Capacidad Batería: 75000mAh (3600Wh / 48V) Potencia: Nominal: 3600kW Nominal 4500kW X-Boost Garantía: 3 años










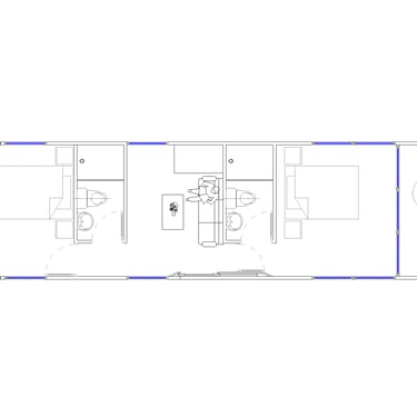
Galeria Interna
Échale un vistazo al interior de tu nuevo hogar








Galería externa
Un breve vistazo al exterior de tu futuro hogar.

















¿INTERESADO?
CONTACTANOS
Escribe ya y adquiere tu propia cabaña Valthara, no te quedes sin la posibilidad de disfrutar las comodidades de Valthara Living
CABAÑAS VALTHARA
Diseño inteligente y autosostenible para cualquier entorno.
COntactanos
Consulta
+57 315 0245280
© 2025. All rights reserved.

